Caricando mappa...

TRILOCALE, FINE GAMMARANA

via Antonio De Benedictis 40,
Teramo, 64100, Italy
€75.000 Trattabili Appartamento
Vendita
  • 162
  • 0
  • 2 Camere
  • 1 Bagno
  • 120 commerciali m²

DESCRIZIONE

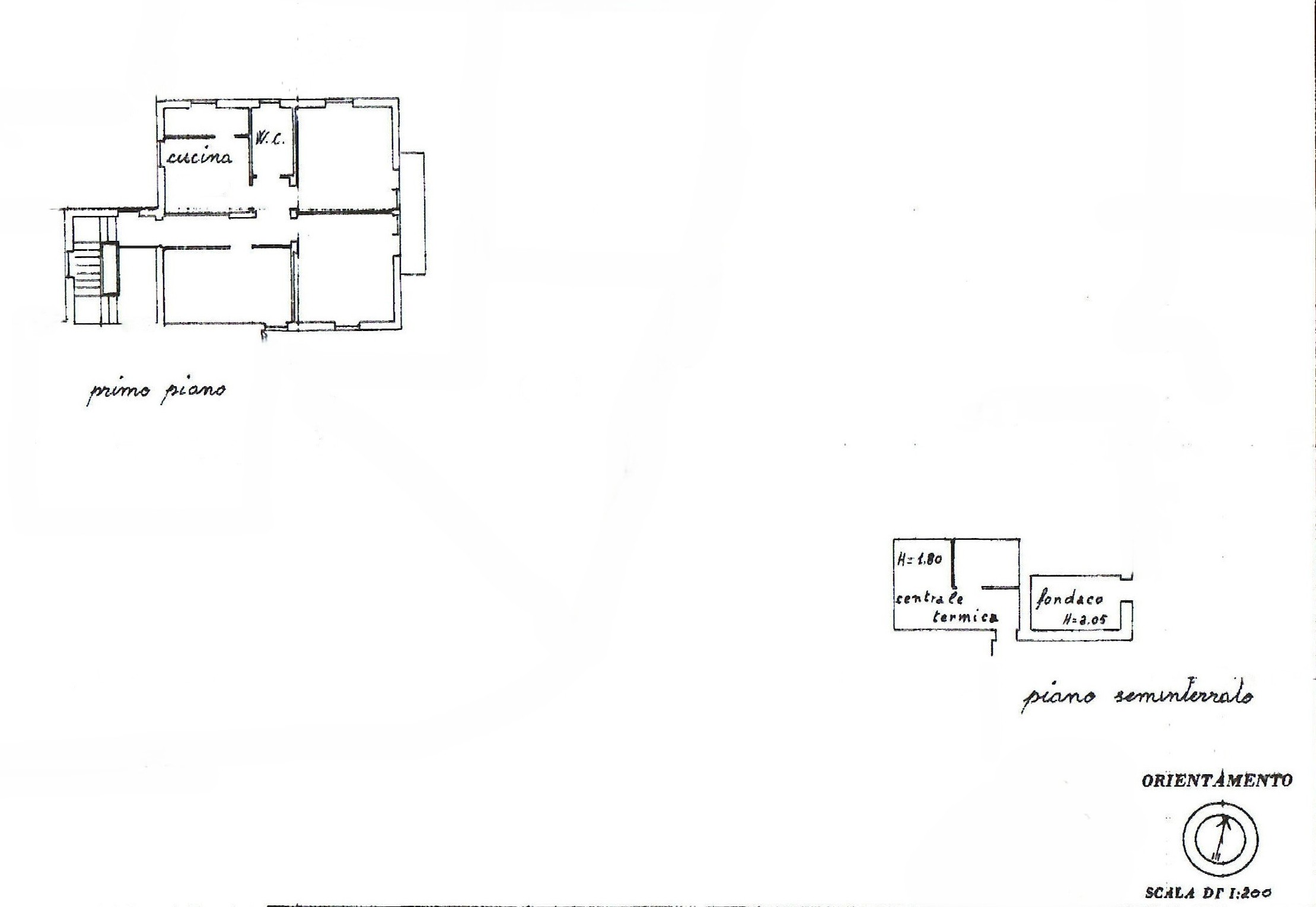
In VENDITA a TERAMO, alla fine del quartiere Gammarana, e più precisamente in via Antonio De Benedictis n. 40, Appartamento di 106 mq lordi, posto al primo piano senza ascensore, all’interno di una piccola palazzina realizzata nel 1966 e composta da sole 6 unità abitative. L’immobile, di circa 86 calpestabili, è così composto: ingresso, ampio soggiorno, cucina abitabile, disimpegno, due camere da letto matrimoniali, bagno con box doccia ed un balcone su cui affacciano sia la sala, sia la camera principale; completano la proprietà, una porzione di sottotetto al piano terzo, una cantina di 6 mq al pianterreno ed un posto auto esterno, situato in area condominiale, al piano terra della palazzina.

L’unità immobiliare, disponibile da subito in quanto non abitata e libera da vincoli di locazione, espone su quattro lati ed è priva di spese condominiali.

L’abitazione, con Attestato di Prestazione Energetica in classe E, si trova in ottime condizioni in quanto di recente, parzialmente ristrutturata (anno 2015), e presenta le seguenti caratteristiche: portoncino d’ingresso blindato, pavimentazione in marmo, infissi esterni in doppio vetro alluminio, persiane in pvc, porte interne in legno, cappotto esterno, bagno ristrutturato e riscaldamento autonomo, con caldaia interna (Vaillant) posta all’interno della cucina.

Per caratteristiche e tipologia, l’immobile può rappresentare una proposta di sicuro interesse per nuclei familiari, alla ricerca di una soluzione già abitabile, all’interno di un contesto residenziale tranquillo e riservato, ed in prossimità di tutti i principali servizi.

Per ottenere maggiori informazioni per questo Appartamento, in VENDITA nel quartiere Gammarana, potete contattarci senza impegno al numero 0861/249002 oppure al 340/4024296 – o visitare la nostra Agenzia in Via Carlo Forti n. 4 (angolo Corso San Giorgio) a TERAMO.

COMFORT

Balcone
Fondaco
Porta blindata
Posto auto esterno
Soffitta

PLANIMETRIA

ULTERIORI INFORMAZIONI

Classe energetica : E
Rendita Catastale: 397,67
Arredamento: No
Disponibilità: Libero da subito
Cucina: Abitabile
Costruita nel: 1966
Lati liberi: Quattro
Piano: 1° senza ascensore
Riscaldamento e tipologia impianto : Autonomo a metano con termosifoni
Stato: Buono, Abitabile
Spese condominiali: Nessuna
Pavimentazione: marmittoni e gres
Orientamento: Est-Nord-Sud-Ovest
Totale appartamenti edificio: 6
Totale piani edificio: S1-T-1-2-3
Infissi esterni: Doppio vetro-alluminio
Affitto con riscatto: No
Categoria catastale: A/3

Lascia un commento

L'indirizzo email non verrà pubblicato.