Caricando mappa...

QUADRILOCALE VILLA POMPETTI, SAN NICOLO A TORDINO

Villa Pompetti,
Teramo, 64100, Italy
€78.000 Appartamento
Vendita
  • 10
  • 0
  • 3 Camere
  • 1 Bagno
  • 130 commerciali m²

DESCRIZIONE

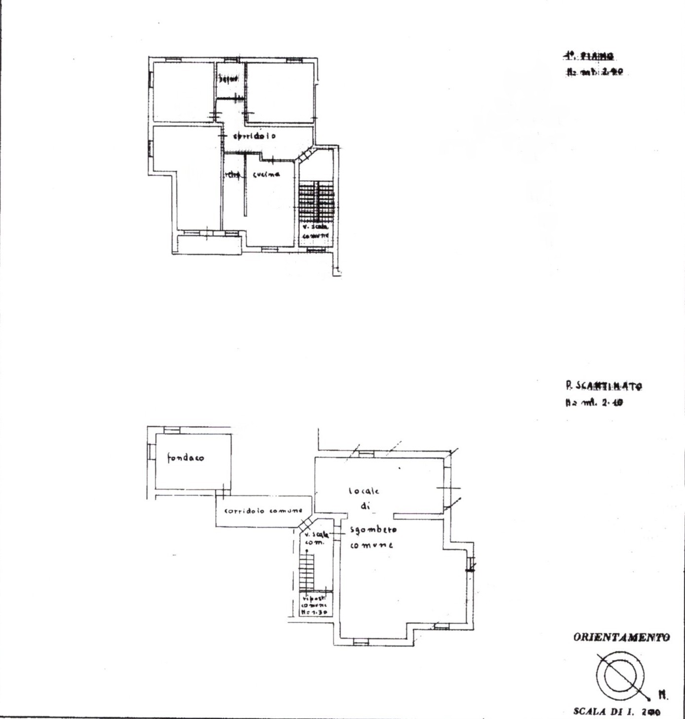
In VENDITA a TERAMO, frazione San Nicolò A Tordino, e più precisamente in località VILLA POMPETTI, Appartamento di circa 120 mq lordi, posto al primo ed ultimo piano senza ascensore (25 gradini a piedi), all’interno di una piccola palazzina realizzata nel 1970 in cemento armato e composta da sole 4 unità abitative. L’immobile, di circa 100 mq calpestabili, è così composto: ingresso, soggiorno con camino, cucinino, disimpegno, tre camere da letto matrimoniali (di cui una con balcone al suo interno) e bagno con vasca (con possibilità di realizzare un secondo bagno all’interno di una camera da letto); completano la proprietà, una porzione (indivisa catastalmente) pari ad 1/4 del garage condominiale posta al piano scantinato dello stabile da eventuale adibire a rimessa moto/bici (non parcheggio auto), una cantina di 15 mq ubicata al piano seminterrato del fabbricato ed un terreno di 60 mq situato al piano terra ed accorpato con la palazzina che potrebbe essere eventualmente adibito ad orticello o a due posti auto.

L’unità immobiliare, disponibile da subito e libera da vincoli di locazione, presenta spese condominiali nell’ordine delle 5 euro mensili relative alla spesa della luce condominiale (non è presente un amministratore e la pulizia delle scale viene effettuata a turno tra i “condomini” una volta a settimana), dispone di tre lati liberi e presenta un’ottima esposizione con affaccio ad Est-Sud-Ovest.

L’abitazione, con Attestato di Prestazione Energetica in classe F, si trova in condizioni abitabili seppur necessiterebbe di migliorie per renderlo più moderno e funzionale e presenta le seguenti caratteristiche: portoncino d’ingresso in legno, pavimentazione in marmo, infissi esterni nuovi in doppio vetro alluminio a taglio termico, tapparelle nuove in pvc, porte interne in legno, impiantistiche interne risalenti all’epoca di costruzione (unica miglioria effettuata il dispositivo di sicurezza salvavita) e riscaldamento autonomo, con caldaia esterna (Vaillant) posta sul balcone.

Per caratteristiche e tipologia, l’immobile può rappresentare una proposta di sicuro interesse per ampi nuclei familiari alla ricerca di una soluzione non troppo esosa, con ridotte spese condominiali, all’interno di un contesto residenziale tranquillo e riservato, ed in prossimità di tutti i principali servizi.

Per ottenere maggiori informazioni per questo Appartamento, in VENDITA nella frazione di San Nicolò A Tordino – in località Villa Pompetti, potete contattarci senza impegno al numero 0861/249002 oppure al 340/4024296 – o visitare la nostra Agenzia in Via Carlo Forti n. 4 (angolo Corso San Giorgio) a TERAMO.

COMFORT

Balcone
Camino
Fondaco

PLANIMETRIA

ULTERIORI INFORMAZIONI

Classe energetica : F
Rendita Catastale: 326,66
Arredamento: No
Disponibilità: Libero da subito
Cucina: Angolo Cottura
Costruita nel: 1970
Lati liberi: Tre
Piano: 1° senza ascensore
Riscaldamento e tipologia impianto : Autonomo a metano con termosifoni
Stato: Abitabile
Spese condominiali: 5 euro mensili
Pavimentazione: Marmo
Orientamento: Est-Sud-Ovest
Totale appartamenti edificio: 4
Totale piani edificio: S1-T-1
Infissi esterni: Doppio vetro-alluminio a taglio termico
Affitto con riscatto: No
Categoria catastale: A/2

Lascia un commento

L'indirizzo email non verrà pubblicato.