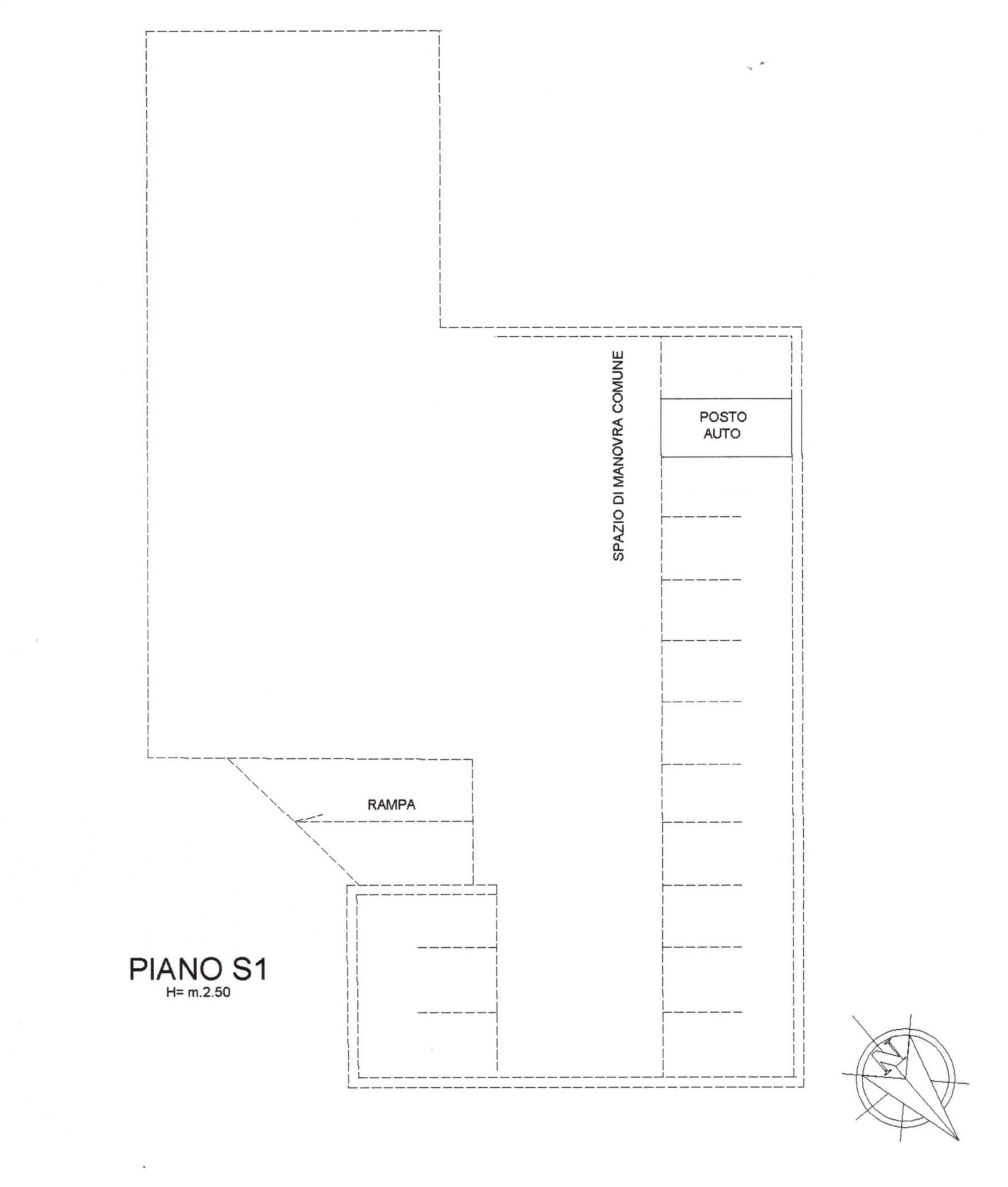
AFFITTASI, in pieno Centro a TERAMO, in Corso San Giorgio n. 15, Prestigioso Appartamento ad uso UFFICIO (categoria catastale A/10), posto al secondo piano con ascensore, all’interno di una signorile palazzina, completamente ristrutturata nel 1994. L’immobile, di 160 mq lordi (135 calpestabili), è disposto su due livelli ed così composto: il primo livello (2° piano del fabbricato) si compone di ampio ingresso con affaccio su via Cerulli Irelli ed una spaziosa stanza ad uso ufficio con affaccio su Corso San Giorgio; il secondo livello (3° piano del fabbricato), a cui si accede tramite scala interna, si compone di tre stanze mansardate ad uso ufficio, un disimpegno e due bagni completi. Completa la proprietà un posto auto coperto di 12 mq, situato all’interno del garage condominiale, ubicato al piano seminterrato dell’edificio.
L’immobile, disponibile da subito, si presenta in ottime condizioni e presenta le seguenti caratteristiche: portoncino d’ingresso blindato, porte interne in legno tamburato, pavimentazione in parquet di pregio (ad eccezione dei bagni con piastrelle in ceramica), infissi esterni in doppio vetro-legno e riscaldamento risulta autonomo (con termosifoni) con caldaia a metano interna posta nell’ingresso. Non è presente l’impianto di climatizzazione. Non sono presenti balconi. Classe Energetica: F.
Locazione solo ed esclusivamente ad uso Ufficio/Studio. Canone mensile richiesto: euro 1.500,00 mensili. Spese Condominiali: euro 100,00 mensili. Cauzione Richiesta: due mensilità del canone. Utenze da volturare a nome e spesa del futuro conduttore.
Per ottenere maggiori informazioni per questo Prestigioso UFFICIO in AFFITTO in pieno Centro a TERAMO, o per prenotare senza impegno una visita, potete contattarci senza impegno al numero 0861/249002 oppure al 3404024296 – o visitare la nostra Agenzia in Via Carlo Forti n. 4 (angolo Corso San Giorgio) a TERAMO.

