Caricando mappa...

APPARTAMENTO AD USO UFFICIO, PIANO SOLARE

via Felice Barnabei 34, Piano Solare,
Teramo, 64100, Italy
€45.000 Trattabili Ufficio | Studio
Vendita
  • 65
  • 0
  • 2 Camere
  • 1 Bagno
  • 65 m²

DESCRIZIONE

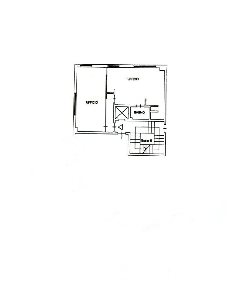
VENDESI, a TERAMO, nel quartiere Piano Solare, in via FELICE BARNABEI n. 34, Appartamento ad uso UFFICIO/STUDIO, posto al primo piano con ascensore (con larghezza d’ingresso di 65 cm), all’interno di una palazzina composta 14 unità immobiliari, realizzata nel 1980 in cemento armato.

L’immobile, di 65 mq lordi (58 calpestabili) e con un altezza di 2,30 m, è così composto: ingresso, due ampie stanze luminose ad uso studio/ufficio ed un bagno di servizio (cieco ma con aspiratore) con adiacente piatto doccia.

Lo Studio, disponibile da subito, dispone di due lati liberi ad angolo con ottima esposizione a Sud-Ovest, non presenta nè pertinenze, nè balconi, e le spese condominiali sono nell’ordine delle 35,00 euro mensili.

L’Ufficio, con Attestato di Prestazione Energetica (APE) in classe F, si trova in condizioni abitabili, seppur necessiterebbe di migliorie per renderlo più moderno e funzionale e presenta le seguenti caratteristiche: portoncino d’ingresso in legno, impiantistiche risalenti all’epoca di costruzione, porte interne in legno, pavimentazione in ceramica, infissi esterni in mono vetro-alluminio e riscaldamento autonomo (con radiatori in alluminio) con caldaia a metano interna; presente inoltre la predisposizione per la cucina nel vano adiacente il bagno.

L’immobile, di categoria catastale A/10, può rappresentare una proposta di sicuro interesse per professionisti ed aziende, alla ricerca di un contesto tranquillo e residenziale, lontano dal caos cittadino e con ampia facilità di parcheggio, nelle immediate vicinanze del centro storico che dista solo 1 km.

Per ottenere maggiori informazioni per questo Appartamento ad uso UFFICIO in VENDITA nel quartiere Piano Solare a TERAMO, o per prenotare senza impegno una visita, potete contattarci senza impegno al numero 0861/249002 oppure al 3404024296 – o visitare la nostra Agenzia in Via Carlo Forti n. 4 (angolo Corso San Giorgio) a TERAMO.

COMFORT

Ascensore

PLANIMETRIA

ULTERIORI INFORMAZIONI

Classe energetica : F
Rendita Catastale: 1.053,55
Arredamento: No
Disponibilità: Libero da subito
Cucina: Predisposizione
Costruita nel: 1980
Lati liberi: Due, ad angolo
Piano: 1° con ascensore
Riscaldamento e tipologia impianto : Autonomo a metano con termosifoni
Stato: Abitabile
Spese condominiali: 35 euro mensili
Pavimentazione: Ceramica
Orientamento: Sud-Ovest
Totale appartamenti edificio: 14
Totale piani edificio: T-1-2-3-4-5
Infissi esterni: mono vetro-alluminio
Affitto con riscatto: No
Categoria catastale: A/10

Lascia un commento

L'indirizzo email non verrà pubblicato.